Grand Prairie Park

Spring 2026 Project Update

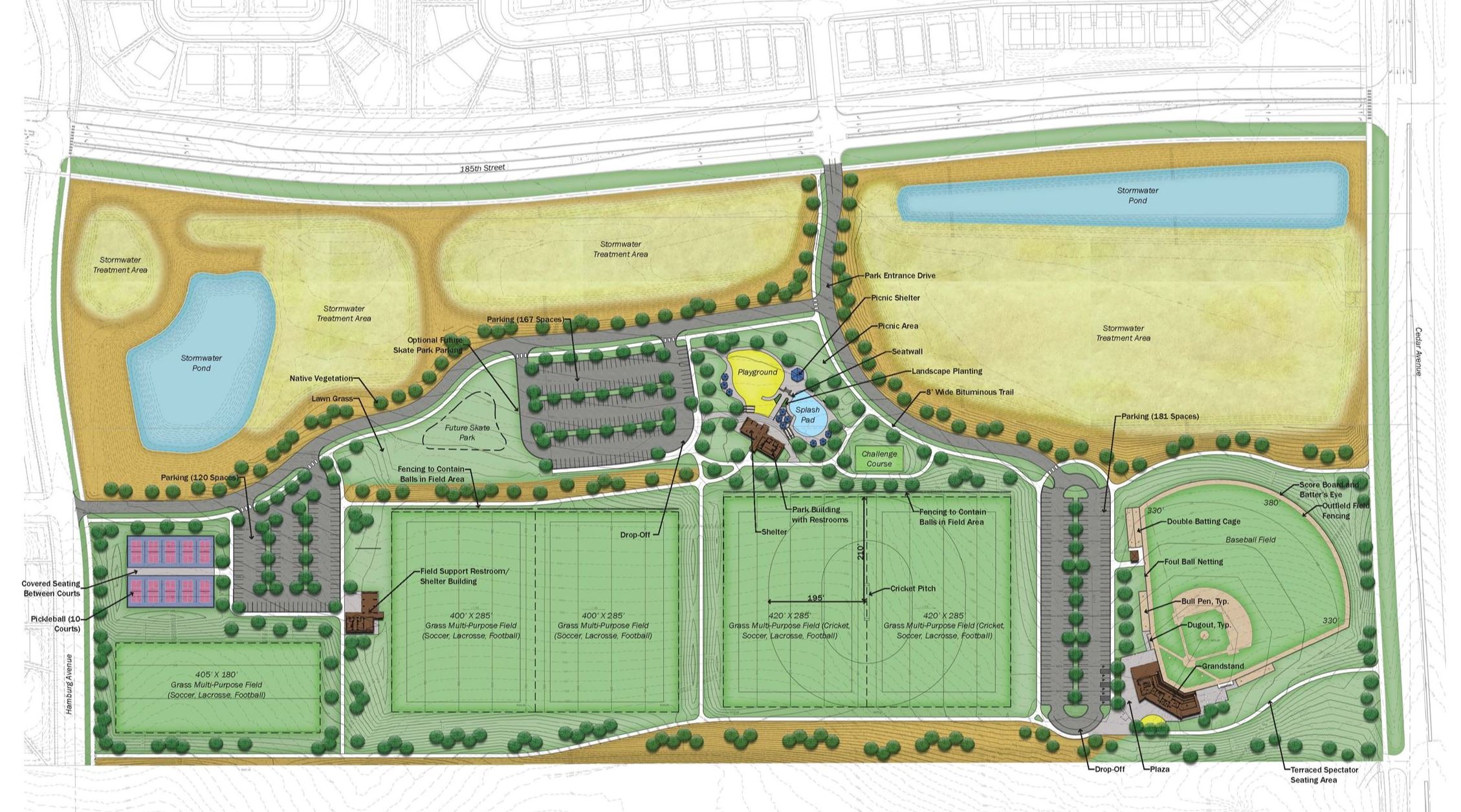
The phased opening of Grand Prairie Park began in late March. Amenities that are now open to the public include:

  • Pickleball courts
  • Playground
  • Challenge Course
  • Trails

Construction is still underway on the grandstand building; these areas are clearly signed, and we ask visitors to use caution when accessing other areas of the park. The public restroom building is scheduled to open in accordance with our standard spring opening schedule and will be ready for use by April 15. The splash pad will open on the Friday before Memorial Day weekend, and the park's grand opening is set for June 1. Stay tuned for details on this event. 

Amenities, including picnic areas, sun shades, splash pad, challenge course, playground and pickleball courts are first-come, first-served. This park does not have a reservable space aside from the fields and cricket pitch. The fields and cricket pitch will not be available for rentals until fall 2026. 

The grandstand and baseball field will be ready to host Lakeville Baseball Association events starting this spring. All other fields remain closed until this fall while we seed and establish turf; signage at the park designates which areas are open for use.

Lakeville Parks and Recreation staff is excited to open the park!

  1. 1 Grand Prairie Pickleball Courts
  2. 2 Grand Prairie Playground and Buildings
  3. 3 Grand Prairie Playground, Field Support Building
  4. 4 Grand Prairie Playground and Some Splash Pad

Master Plan Concept

* The master plan concept images are meant to illustrate a general proposed layout showing how the amenities relate to one another and to provide examples of the types of amenities to consider during implementation. The actual designs for the buildings, playground equipment, athletic fields and other site amenities have not been determined at this point and would take place during the final design process.

  1. 1 Avonlea Park Master Plan
  2. 2 Play Area and Splash Pad Enlargement
  3. 3 Baseball Facility Enlargement